Friarwood Avenue, Pontefract
Friarwood Avenue, Pontefract
Sold
Sold
Sold STC
For Sale
For Sale
Sold
Sold STC
Property Summary
The house boasts two modern bathrooms, ensuring that morning routines are seamless and convenient for all occupants. The design of the property maximises space and light, creating a pleasant living environment throughout.
Situated in a desirable location, this home is close to local amenities, schools, and parks, making it an excellent choice for families. The surrounding area offers a sense of community while still being within easy reach of Pontefract's vibrant town centre.
Full Details
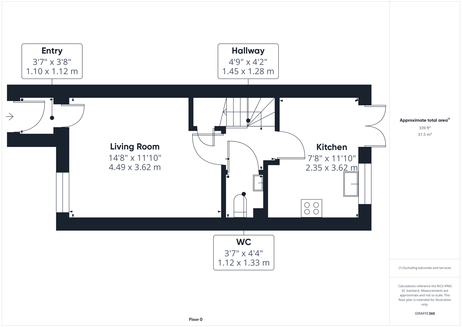
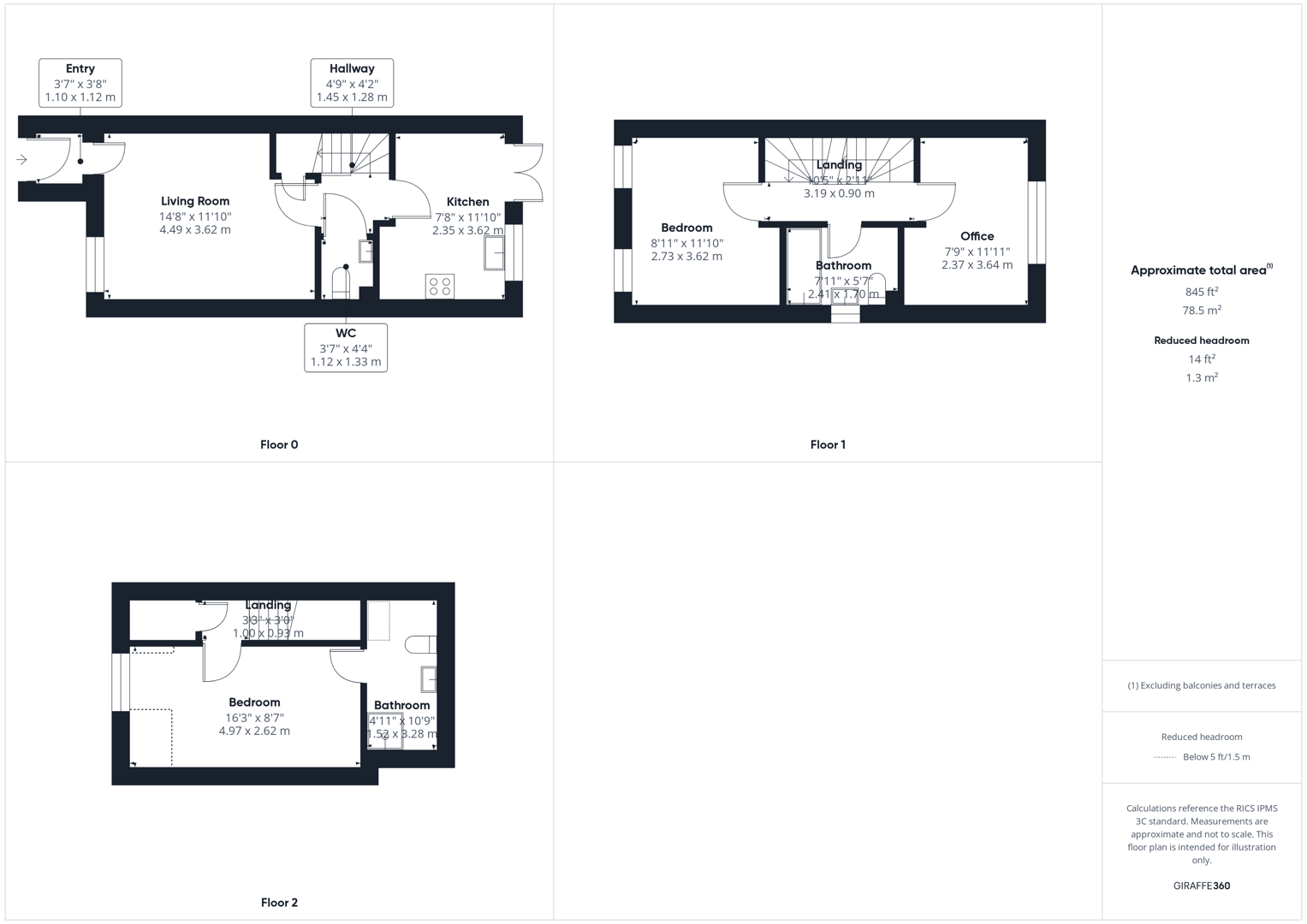
Entrance 1.10 x 1.12
Composite front entrance door leads into a hallway, gas central heated radiator. Door access into the lounge.
Living Room 4.49 x 3.62
UPVC double glazed window to the front elevation and storage cupboard. Gas central heated radiator. Access door into the inner hallway.
Hallway 1.45 x 1.28
Access to the WC and to the kitchen diner. Stairs lead to the first floor.
WC 1.12 x 1.33
Toilet with a low-level flush, sink with chrome taps gas central heated radiator.
Kitchen 2.35 x 3.62
UPVC double glazed window to the rear elevation. Patio doors lead out onto the rear garden. With a modern ange of wall and base kitchen units and laminate work surfaces over. Stainless steel sink drainer and mixer tap. Plumbing for a washing machine. Electric oven with gas hob over. Extractor hood. Integrated fridge freezer. Gas central heated radiator.
First Floor 3.19 x 0.90
Landing with access to two bedrooms and the family bathroom. Gas central heated radiator.
Bedroom One 2.73 x 3.62
UPVC double glazed windows to the front elevation. Gas central heated radiator. Wall panelling.
Office 2.37 x 3.64
UPVC double glazed window to the rear elevation, gas central heated radiator.
Bathroom 2.41 x 1.70
White suite comprising bath with a mixer tap, hand wash basin with a mixer tap, and low-level flush w/c. Part tiled walls. UPVC double glazed window to the side elevation. Gas central heated radiator.
Stairs to the top floor 1.00 x 0.93
Stairs to the top floor. Access to bedroom one. Storage cupboard.
Main Bedroom 4.97 x 2.62
UPVC double glazed window to the front elevation and a gas central heated radiator. Loft access. Door opens to the ensuite bathroom.
EnSuite 1.52 x 3.28
A shower cubicle with a main feed shower. Hand wash basin with a mixer tap toilet with a low-level flush w/c. Gas central heated radiator. Partly tiled walls. Velux roof window.
Garden
To the rear, there is an enclosed garden with decking and patio areas. A side gate which leads to the front.
Driveway
A double tarmac driveway for parking.







































