Hall Cliffe Road, Horbury, Wakefield
Hall Cliffe Road, Horbury, Wakefield
Sold
Sold
Sold STC
For Sale
For Sale
Sold
Sold STC
Property Summary
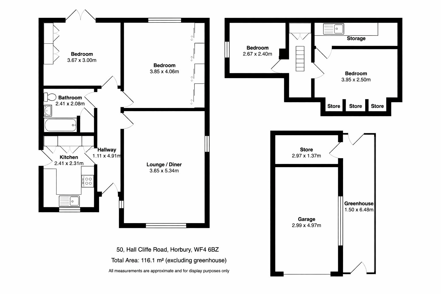
Welcome to Hall Cliffe Road, Horbury – a charming two-bedroom semi-detached bungalow offering generous living space, a self-contained garage, and a large, tiered rear garden. Ideal for buyers seeking a home with both comfort and future potential, the property also offers scope to extend, subject to the necessary planning permissions.
Accessed via a side entrance, the property opens into a well-appointed kitchen which leads seamlessly into a central hallway connecting the main living areas. To the front of the home is a spacious lounge/reception room, providing a warm and inviting space for both relaxing and entertaining.
To the rear, the generous principal bedroom benefits from fitted wardrobes and an abundance of natural light, while the second bedroom enjoys French doors opening directly onto the private rear patio—perfect for summer evenings and indoor-outdoor living. The stylish house bathroom features a bathtub alongside an oversized rainfall showerhead, adding a touch of everyday luxury.
A particular highlight is the converted loft area, which provides two additional rooms. These flexible spaces offer exciting potential for further development or reconfiguration, subject to planning consent, and could suit a variety of uses such as home offices, hobby rooms, or additional accommodation.
Externally, the property boasts a charming and well-maintained garden, ideal for outdoor relaxation and entertaining. To the front, a spacious driveway leads to the garage, offering ample off-road parking. The rear garden features a patio area stepping up to a neatly kept lawn, with a separate decking area perfect for seating or alfresco dining. A greenhouse will appeal to gardening enthusiasts, while a further elevated section adds extra outdoor space and character, creating a unique tiered layout with plenty of scope for personalisation.
Full Details
Hallway 1.11 x 4.91
Kitchen 2.41 x 2.31
Lounge/Diner 3.65 x 5.34
Bathroom 2.41 x 2.08
Bedroom 3.67 x 3.00
Bedroom 3.85 x 4.06
Bedroom 2.67 x 2.40
Bedroom 3.85 x 2.50
Garage 2.99 x 4.97
Store 2.97 x 1.37
Greenhouse 1.50 x 6.48









































