Stanley Parkway, Stanley
Stanley Parkway, Stanley
Sold
Sold
Sold STC
For Sale
For Sale
Sold
Sold STC
Property Summary
The house is set in a popular neighbourhood, allowing for a modern living experience while still being close to local amenities and transport links.
This property presents an excellent opportunity for those looking to settle in a friendly community, with ample space for both personal and family needs. Whether you are a first-time buyer or seeking a new family home, this house on Stanley Parkway is sure to impress. Don't miss the chance to make this lovely property your own.
Full Details
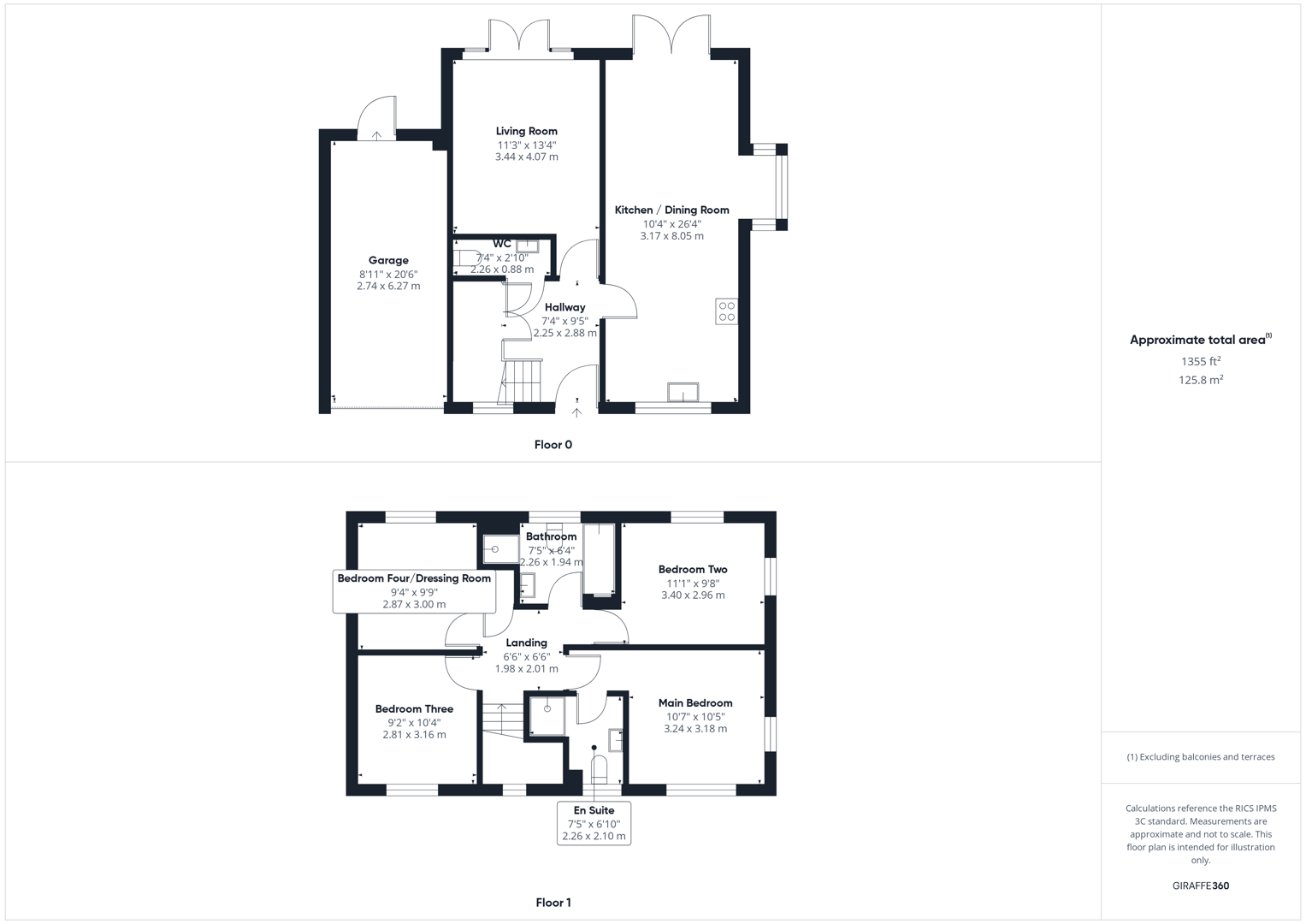
Hallway 2.25 x 2.88 m
A welcoming entrance hall with a neutral palette and dark flooring sets a calm tone for the home. The staircase with carpeted steps leads to the upper floor. Doors open off the hallway into the cloakroom and the main kitchen and living areas.
WC 2.26 x 0.88 m
The ground floor WC is stylishly fitted with a white suite, including a modern toilet and wall-mounted basin. The subtle panelling on the walls adds character to the compact space, which is bright and fresh in appearance.
Kitchen / Dining Room 3.17 x 8.05 m
The kitchen and dining room form a bright, open-plan space with ample natural light from the windows and skylights. Glossy white cabinetry is paired with light wooden worktops and stylish tiled splashbacks in a herringbone pattern. Integrated appliances include a double oven and gas hob with a chimney extractor. The dining area comfortably accommodates a table for six and is complemented by elegant wall panelling and tasteful lighting. French patio doors lead out to the garden, creating a seamless indoor-outdoor flow.
Living Room 3.44 x 4.07 m
The living room benefits from generous natural light through patio doors opening to the rear garden, as well as large windows. The room is spacious enough to accommodate a seating area and offers a comfortable space to relax. Neutral tones and recessed ceiling lights contribute to the bright and airy ambience.
Main Bedroom 3.24 x 3.18 m
The main bedroom is generously sized and bright, with two windows allowing plenty of natural light. Neutral decor and fitted carpets create a restful atmosphere. A door leads to the en suite.
En Suite 2.26 x 2.10 m
The en suite bathroom connected to the main bedroom features modern fittings including a toilet, wash basin, and shower enclosure. The room is compact yet functional, with a clean design in white and neutral tones.
Bedroom Two 3.40 x 2.96 m
Bedroom Two is a comfortable double room with a window overlooking the front of the property. It benefits from natural light and carpeted throughout.
Bedroom Three 2.81 x 3.16 m
Bedroom Three is a well-proportioned room with two windows providing ample daylight over looking to the front of the property. The room is decorated in soft neutral tones and is carpeted throughout.
Bedroom Four / Dressing Room 2.87 x 3.00 m
Bedroom Four/Dressing Room is a versatile double room with plenty of natural light from one window. It offers space for bedroom furnishings or a dressing area, complete with fitted wardrobes that maximise storage.
Bathroom 2.26 x 1.94 m
The main family bathroom is stylishly designed with a white bath, separate shower, toilet, and wash basin. The walls feature textured tiling halfway up with a dark green painted area above, adding a modern touch. A window provides ventilation and natural light, while the layout allows for practical use of the space.
Rear Garden
The rear garden offers a pleasant mix of paved patio and lawn, creating a versatile outdoor space for relaxing or entertaining. The patio is spacious enough for seating and a barbecue, while the lawn is well-maintained and bordered by high fences for privacy.
Garage 2.74 x 6.27 m
The garage provides a long, practical space for parking or storage. The garage is accessed via a rear door leading to the garden.







































































