Woodside Long Lane, Ackworth, Pontefract
Woodside Long Lane, Ackworth, Pontefract
Sold
Sold
Sold STC
For Sale
For Sale
Sold
Sold STC
Property Summary
Full Details
Front Exterior
The exterior of the property showcases traditional brickwork with dark timber framing on the upper floor. The front garden is well-maintained with lush greenery plants trees and a beautiful lawn, bordered by a brick wall and gate that provides privacy and a welcoming entrance.
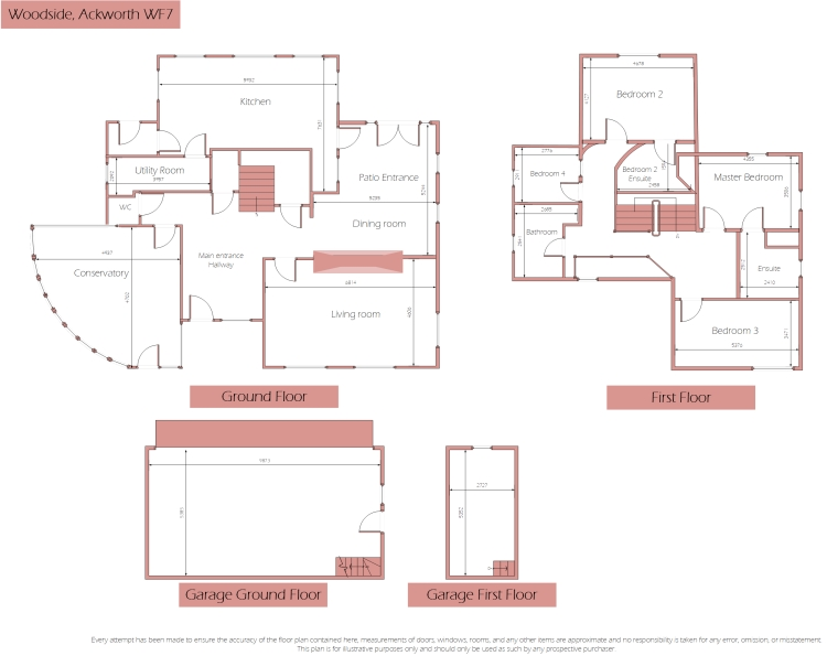
Main entrance Hallway
The hallway welcomes you into the home with dark wooden floors and exposed dark wood beams overhead. A large window by the door lets in natural light, while the brick pillar adds a rustic charm. The hallway is spacious and connects various parts of the ground floor.
Living room
The living room is a warm and inviting space characterised by dark wooden ceiling beams and a large brick fireplace with a wood-burning stove, set against a herringbone brick hearth. The wooden floor adds to its classic charm, while large windows dressed with dark curtains allow natural light to enhance the room’s cosy atmosphere.
Conservatory
Adjoining the hallway this room overlooks the gardens and is a beautiful addition to this detached home.
Kitchen
This kitchen combines traditional and rustic elements featuring wooden cabinetry with ample storage. The room is well-lit by a wide window over the sink, with a tiled floor in earth tones. A brick archway houses a range cooker, adding character and a homely feel to this well-equipped kitchen.
Utility Room
Accessed through the kitchen is a useful utility room which provides plumbing for a washing machine and dryer.
WC
Situated at the bottom of the hallway is this single toilet, with a wash hand basin and a central heated radiator.
Dining Room
This reception room features dark wood flooring and a central brick feature wall with a traditional fireplace. The ceiling is accented by exposed wooden beams, creating a warm and inviting atmosphere. Light filters in through a window beside the original fireplace, enhancing the room's classic character. It connects the hallway to the kitchen and provides access via patio doors into the rear garden.
Landing
Giving access to all four bedrooms and the family bathroom. This area has stunning open ceiling features with exposed ceiling beams. This is visible from the main entrance hallway.
Bedroom One
The main bedroom is a bright and spacious room featuring a pitched ceiling with exposed dark beams. It includes a large window that brings in natural light and built-in wardrobes with dark wood doors. There is an en suite bathroom attached for added convenience.
En Suite
A convenient bathroom attached to the main bedroom, with a corner bath, hand wash basin with vanity unit and low flush wc. There is partial tiling to the walls and a double glazed window to the side elevation. Ceiling timber beams and spotlights add elegance.
Bedroom Two
A charming room with white walls and a sloping ceiling highlighted by exposed dark beams. Built in storage cupboards, creating a cosy and practical space.
En Suite
This room is a second bathroom adjoining bedroom two featuring clean white tiles and a modern chrome towel radiator. A basin with storage underneath sits beside a uniquely tiled bath area decorated with small blue mosaic tiles, creating a subtle splash of colour in an otherwise crisp, white space.
Bedroom Three
Bedroom three is a cosy bedroom equipped with built-in storage cupboards with dark wooden doors. The ceiling slopes with exposed beams, giving the space character and warmth.
Bedroom Four
With a double glazed window to the side elevation, ceiling beams and spotlights. Gas central heated radiator.
Bathroom
This bathroom features a bright and clean design with a white pedestal sink and low flush wc set against a backdrop of white and dark blue tiled walls. A tiled bathtub is inset into the wall, surrounded by small blue mosaic tiles, creating a splash of colour and texture. A large window with leaded glass details allows natural light to fill the space, enhancing the fresh feel of the room.
Garage Ground Floor
The large garage has plenty of space with a concrete floor and white walls, currently used for vehicle storage. The sizeable area provides practical utility and can accommodate multiple vehicles or be adapted for additional storage or workspace. This room with be ideal for a garage conversation subject to planning consent with its size and two story original build. The size provides multiple options.
Garage First Floor
The first floor of the garage is accessed by stairs and provides a useful additional storage area with exposed wooden beams and ample space for organising items neatly away from the main garage.
Garden
Fittingly named Woodside, the property’s name perfectly reflects the beauty, privacy and natural setting of this remarkable home.
Situated within stunning grounds, this exceptional property is surrounded by beautifully maintained gardens to all four sides and approached via a sweeping private driveway, leading into a tranquil, tree-lined setting.
The property also benefits from an additional entrance on Pontefract Road, which has not been used for several years. Should a purchaser wish to convert the garage into a self-contained annex, this entrance would provide ideal independent access, remaining entirely separate from the main approach on Long Lane.
The gardens are a true highlight, featuring mature plants, shrubs and established trees, all landscaped to an exceptionally high standard. Further features include a charming pond and an attractive block-paved driveway, creating a picturesque and peaceful outdoor environment.







































































